天天色综|古惑仔5在线观看完整版视频|久久久丝袜|邵氏电影在线观看完整版免费,亚洲色图p,毛片在线不卡,一本色道久久加勒比88综合

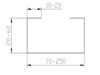
C70-250 電腦快速換型檁條機(B款)

70-250電腦換型c型鋼機_副本.jpg70-250_副本.jpg